Laman

Senin, 31 Oktober 2011

Burner Bahan Bakar Gas (Part 2)

Gas burner dapat diklasifikasikan menjadi premixed burner dan non-premixed burner. Jenis flame stabilizer yang digunakan diperlihatkan pada gambar berikut:


Banyak flame stabilizer yang diterapkan pada gas burner. Bluff body, swin dan kombinasinya merupakan mekanisme stabilisasi yang dominan.

1. Fully Premixed Burner
Suatu fully premixed burner terdiri atas suatu bagian untuk pengadukan sempurna bahan bakar dan udara upstream dari burner. Burner tertentu terdiri dari flame holder khusus. Penempatan yang memungkinkan campuran menuju combustion chamber dirancang untuk menghasilkan kecepatan yang tinggi melalui sejumlah besar orifice untuk menghindari kemungkinan api menyala kembali melewati flame holder dan menyalakan campuran upstream burner. Pembakaran pada permukaan alat dirancang untuk bahan bakar gas dan udara yang telah tercampur seluruhnya dan membakarnya pada permukaan radian yang berpori. Suatu peletakan yang dekat antara proses pembakaran dengan permukaan burner menghasilkan temperatur api yang rendah dan akibatnya emisi NOx rendah. Permukaan dapat berupa ceramic fiber, reticulated ceramics dan metal alloy mats. Hal ini memungkinkan bentuk burner untuk dimodifikasi agar sesuai dengan kebutuhan profil transfer panas.

2. Partially Premixed Burner
Burner jenis ini memiliki tempat untuk pencampuran yang flammable. Udara Pembakaran sekunder disuplai di sekitar flame holder. Contohnya bisa dilihat pada gambar berikut

  

3. Nozzle-Mix Burner
Burner jenis ini adalah jenis burner yang paling banyak digunakan di industri. Udara dan bahan bakar yang terpisah sampai akhirnya dicampurkan secara cepat dan bereaksi setelah meninggalkan bagian pemasukkan. Gambar 7 c, d, e, f, h menunjukkan contoh berbagai macam desain nozzle-mix yang digunakan. Burner jenis ini dapat digunakan pada

rentang rasio bahan bakar dan udara yang lebar, pada bentuk api yang bermacam-macam dan kemampuan membakar berbagai jenis bahan bakar. Burner jenis ini dapat digunakan pada berbagai kondisi dengan cara membakar pada kondisi yang kaya akan bahan bakar (50% excess bahan bakar) atau pada kondisi yang minim bahan bakar (1000% excess udara). Dengan mengubah bentuk nozzle dan derajat putaran udara, profil api dan kecepatan pencampuran bisa divariasikan secara luas. Misalnya dari pencampuran secara cepat dengan api pendek (L/D=1) menjadi api konvensional (L/D=5 sampai 10) menjadi pencampuran secara lambat menggunakan api panjang (L/D=20 sampai 50)

4.
Staged Burner
Cara yang tepat untuk meminimalisasi emisi NOx adalah dengan menggunakan staged burner.
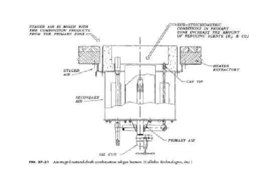
a. Air-Staged Burners

Pada desainnya, air-staging and external flue-gas recirculation keduanya digunakan untuk memperoleh emisi NOx yang sangat rendah (hampir 90%  di bawah burner konvensional). Bahan bakar gasnya diresirkulasi menggunakan pompa jet yang digerakkan oleh udara pembakaran primer.

b. Fuel-Staged Burners
  Penggunaan fuel-staged burner adalah pembakaran yang berlebih untuk mengontrol NOx karena bahan bakar gas hanya mengandung sedikit nitrogen.


Gambar 27-36 menggambarkan fuel staged natural draft pada proses refinery yang menggunakan burner sebagai pemanas. Bahan bakar dibagi menjadi arus primer (30%-40%) dan udara sekunder (60%-70%). Gas furnace dapat di resirkulasi menggunakan jet udara primer untuk meningkatkan kontrol NOx. Emisi NOx turun  80% - 90% jika menggunakan pembakaran jenis ini.
Daftar Pustaka:
Perry, R.H. dan Green D.W. 1998. Perry's Chemical Engineers Handbook (eds), McGraw-Hill Book Co., Singapore.


Disusun oleh:
AGUS ADHIATMA
ASTSARI ABDUL MAJID
DANIK WIDI ASTUTI
FATIMAH
GEMMA CINTYA BINAJIT

Tidak ada komentar:

Posting Komentar